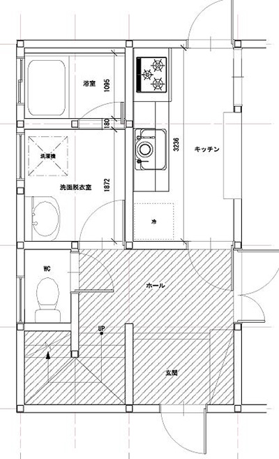
お風呂と脱衣室の広さを反対にして快適空間に
タイプ別|すべて







物件概要
| 建築構造 | 木造 |
| 建築年数 | |
| 金額 | 300万円 |
| リフォーム内容 | 浴室・脱衣室・トイレ・キッチン |
お客様のご要望
最初はお風呂が狭いから・・・ということでお伺いしました。お風呂の面積を変えずに新しくするか、壁を壊して1坪サイズのユニットバスを入れるか悩んでいました。
タンク付のトイレを暖房洗浄付きのものに交換を希望。
またキッチンも幅は十分にあったのですが老朽化が進んでいて、部分的に交換を希望されていました。
Before![]() |
After![]() |
プランナーからのコメント
面積に余裕が無かったため、お風呂を広げる代わりに脱衣室の面積が小さくなることをご了承いただき、脱衣室の収納をニッチ戸棚で解消することにしました。またトイレが階段下で狭い空間だったため、タンク付のものから手洗器の付いたタンクレストイレを提案、これでトイレをもっと奥の壁に寄せることができ、トイレ前方の空間を広げることが出来ました。それからレンジフードとガスコンロの交換を希望していたキッチンでしたが、こちらの提案で思い切って全て交換することに。モノであふれていたキッチンでしたが既存のシステムキッチンよりも収納力のあるものに変わったことでスッキリ、また白に近い木目調の扉カラーで清潔感のある明るいキッチンに変わりました。さらに工事の途中で急勾配の階段の上り下りの問題が上がり、後付の手摺をつけて解消しました。お子様たちとも仲良くなれて工事完了の際には少し名残惜しい気持ちになりましたが、お客様にも満足していただき私もうれしく思いました。






