“好き”をたくさん詰め込んだマンションフルリノベーション
東京都 F様邸 マンションリノベーション
ビフォー&アフター|マンション
都内の新築マンションはここ数年で高騰しているのはニュースでもよく耳にすることと思います。
そんな中、中古のマンションも人気が高く“自分好み”にリノベーションするという選択肢も増えています。
今回ご紹介する事例は、ご夫婦+お子様の3人暮らしで日頃の“使いづらい”を解消し、“住んでいて幸せ”な家の実現を目指し、リノベーションした事例になります。
お客様のご要望
●浴室を少しでも広くしたい
●脱衣所が狭いので広くしたい
●キッチンの背面に書類等を収納できるようにしたい
●洋服等を収納できるスペースをもう少し確保したい
●玄関を少し広げてコート等を掛けられるようにしたい
◎暮らしていて“幸せ”を感じられる空間にしたい!!!
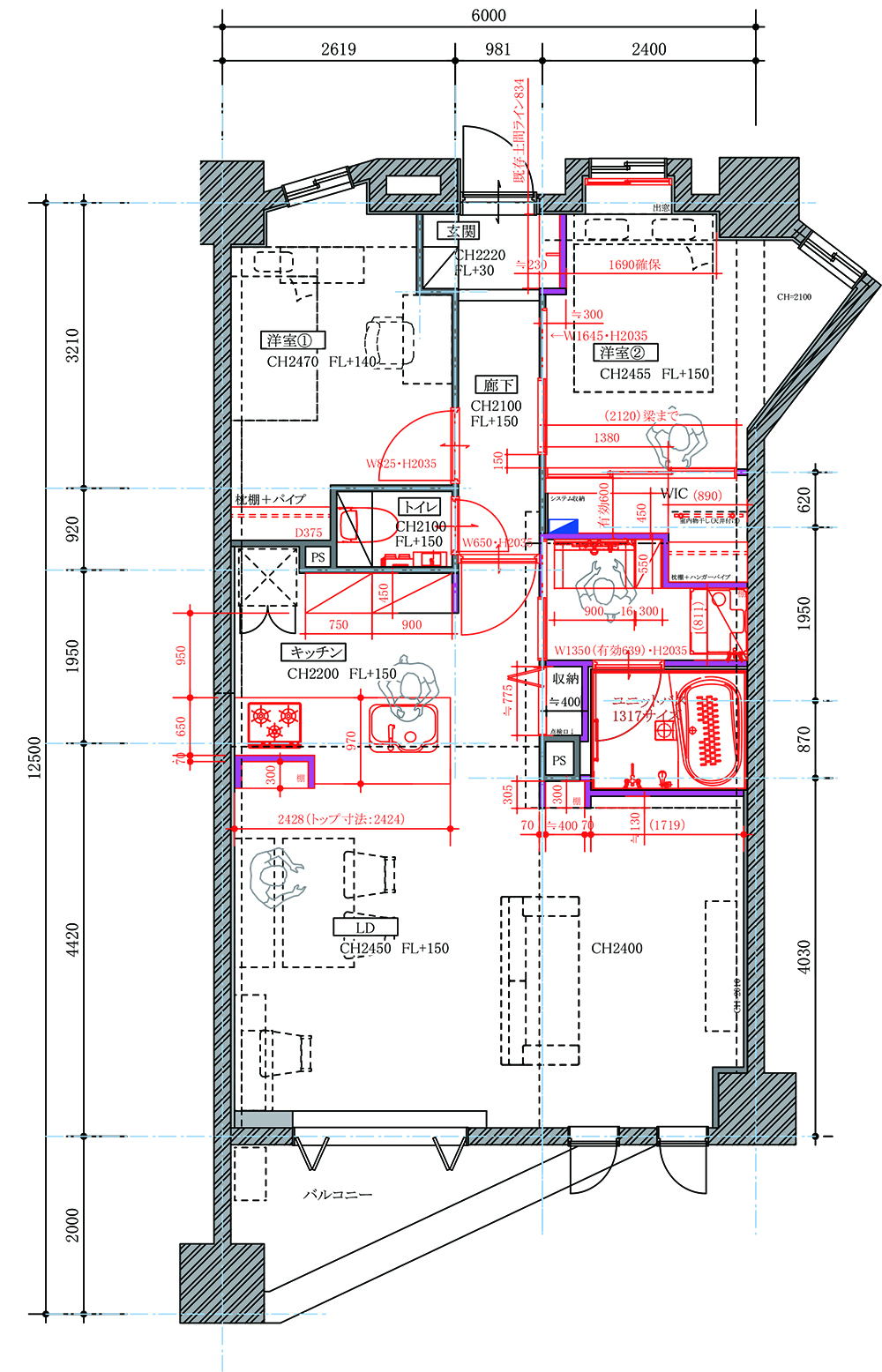
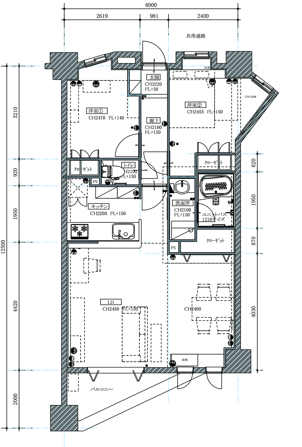
ビフォー&アフター
Before After
|
|
|
ビフォー&アフターの写真・プランのポイント
ターコイズブルーがアクセント!間接照明とアーチでおしゃれ度UP!
|
Before カウンターのある腰壁に、ご自身でご購入された収納を置いていました。 |
After 背面が収納になっているオープンキッチン(ノクト/LIXIL)を採用。キッチンの扉の面材に合わせてアーチ部のクロスを選びました。 またキッチンの天井の段差を利用して間接照明をご提案させていただきました。
|
|
|
キッチン裏収納 裏面はA4サイズの書類が収納できる棚があります。 またインターネットのモデムもこちらに隠して収納します。 |
|
キッチン脇収納 部屋の中央に配置した収納には、掃除機置き場を作りました。内部にもコンセントを設置し充電もできます。 |
キッチンからの景色
|
Before 木目の床でどこか古い印象でした。 |
After 石目の床材を貼り、落ち着きのあるミルクティー色クロスで仕上げました。 |
サイズアップに成功!ユニットバス
|
Before 既存は1218サイズ |
After お風呂の位置を変え、1317サイズに拡張 |
狭かった脱衣所が使い勝手の良い空間へ
|
Before 脱衣スペースが狭く収納もありませんでした |
After 間取り変更により下着等収納できるトールキャビネットも設置できました。奥様のこだわりの内装でとても素敵な空間に! |
すっきり素敵なトイレ空間へ
|
Before 狭いトイレ空間 |
After 手洗い用の排水を新たに配管し、すっきり空間に。明るいのが苦手な奥様のご要望により照明はブラケット照明にしています。 |
娘様部屋★好きなクロスで自分空間に
|
Before 収納が少なく家具を設置していたため狭い部屋に、、、 |
After クローゼットは扉をなくしオープンに!クロスは娘様に選んでいただきました。 |
扉の位置を変えて壁~壁のクローゼットに
|
Before 造り付けの収納は収納力が少なく洋服が外にあふれていました。 |
After 3枚連動の扉を設置。下部はお施主様が自由にカスタマイズできるようにオープンにしました。 内部はよく見ると奥様の好きなスヌーピー柄です★ |
新築で購入した際は気が付かなかった不便さ、、、住んでいる中で気が付くことも多いですよね。
マンションは戸建てに比べてキッチンやお風呂、洗面・トイレと水回りの位置を大きく変えることは難しい場合もありますが、今回の事例のように【ダウンスラブ】になっている場合は間取り変更することも可能です。
専門的な知識も必要なため、「こんなこと出来ないかな~」「こんな風にしたいな~」等の夢を是非、TOKAIに教えてください!
全力でお手伝いさせていただきます。





