水まわり設備を一新 ご夫婦二人の暮らしをグレードアップ!
東京都 K様邸 マンションリフォーム
ビフォー&アフター|すべて
水まわり設備の耐用年数の目安は一般的に15年~20年です。いまどきの最新設備機器は、お掃除のしやすい素材・節水・収納力・デザイン性等、年々性能が向上しています。
設備機器の老朽化時期と同じくして、ライフスタイルの変化や働き方の多様化等暮らしに変化があらわれる頃です。設備機器を一新して、ご夫婦がより快適で便利な暮らしのためのリフォームをされた事例をご紹介します。
お客様のご要望
・老朽化した水まわり設備を全て交換したい。
・和室を洋室に変えたい。
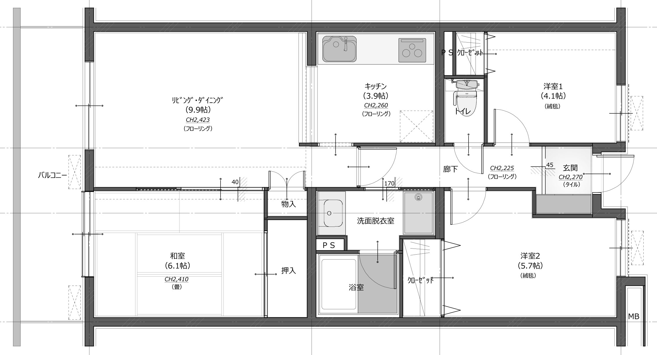
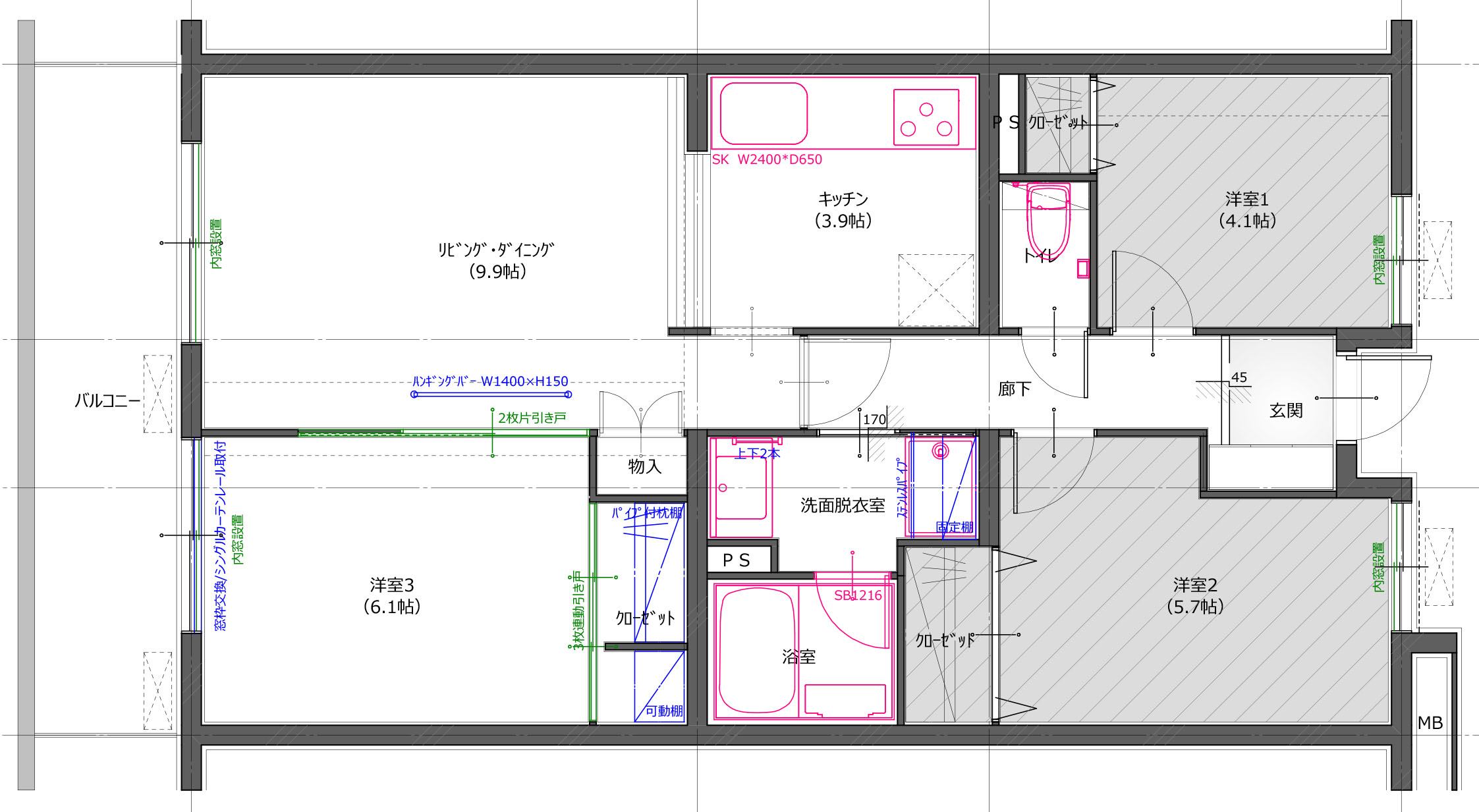
間取り図 ビフォー&アフター
Before

After

ビフォー&アフターの写真・プランのポイント
お気に入りの扉カラー「ネイビー」のキッチン
|
Before |
After TOTO:ザ・クラッソ 除菌効果のある水がミスト状で噴霧される『タッチレス「きれい除菌水」生成器』・10年間ファンのお手入れ不要『ゼロフィルターフードeco』を搭載し、お手入れがしやすいキッチンです。 吊戸棚もなくしたので、シンプルでスッキリとしたキッチン空間になりました。 |
|
Before |
After TOTO:マンションリモデルバスルーム 『高断熱人大浴槽』・断熱性清掃性の優れた『ほっカラリ床』・心地よい刺激と節水を両立した『コンフォートウェーブシャワー』・『浴室暖房換気乾燥機』 |
|
Before |
After TOTO:オクターブ 水栓が上部についていて、バックパネルとボウルは継ぎ目なく一体形状の洗面台はお手入れが簡単♪ミラーはセンサーに手をかざしてオン・オフできるLED照明付き三面鏡です。 |
|
Before |
After TOTO:ネオレスト 『きれい除菌水』が、便器・ノズル・便座を除菌! 丸いフォルムのタンクレストイレと、ネコちゃん好きの奥様が選定された壁紙で可愛らしい空間となりました。 |
和室→洋室仕様に
|
Before |
After クローゼットの3枚連動引き戸は、広い開口を確保できて使い勝手抜群! |
|
After 左側はハンガーパイプで洋服収納。 |
After 右側は可動棚を取り付けて、バックや生活雑貨等を収納。 |
|
After リビング⇔洋室間の2枚引き戸は、Panasonicのベリティス。扉を表裏色違いにオーダーができます。リビング側はホワイト。 |
After 洋室側はブラウン。 |
障子→内窓に交換
|
Before |
After 洋室空間にもマッチする格子入り複層ガラスの内窓。断熱性能をUPしながら、お部屋を美しく演出してくれています。 |